Kota Baru Parahyangan, Padalarang, Bandung Barat +62 813 9448 7792
NEW CLUSTER

TARUKEJORA HOUSE

Varian terbaru di Tatar Tarubhawana didesain serasi dengan lingkungannya berlanggam arsitektur Modern Tropical House serta dimanjakan oleh fitur ‘eco smart home’. Tampil anggun dengan detil tampak muka yang dipadukan dengan fungsi balkon.

smarthome1
Image

Tarukejora House / Location

Image

Suasana hunian asri dan nyaman dengan menghadirkan taman tematik 'Science Of Trees' bagi penghuni sebagai tempat berkreatifitas di luar ruang namun dekat dengan rumah.

Tarukejora House terletak di lokasi yang strategis di Kota Baru Parahyangan dekat dengan :

Town Center
Ikea Store
Wahoo Waterworld
Parahyangan Golf

TARUKEJORA HOUSE

'‘Science of trees'

Harmoni alam dan karya arsitektur yang menyuguhkan pengalaman hidup estetik kini hadir di Kota Baru Parahyangan.

Image
Image
smarthome2
smarthome2
smarthome2

Balkon menjadi 'katalis' ruang dalam dan alam yang asri di semua ruang tidur lantai atas.




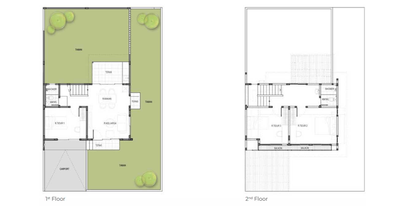
FLOOR PLAN
Tarukejora House | Standard LB | LT : 97 | 120 m²

smarthome1

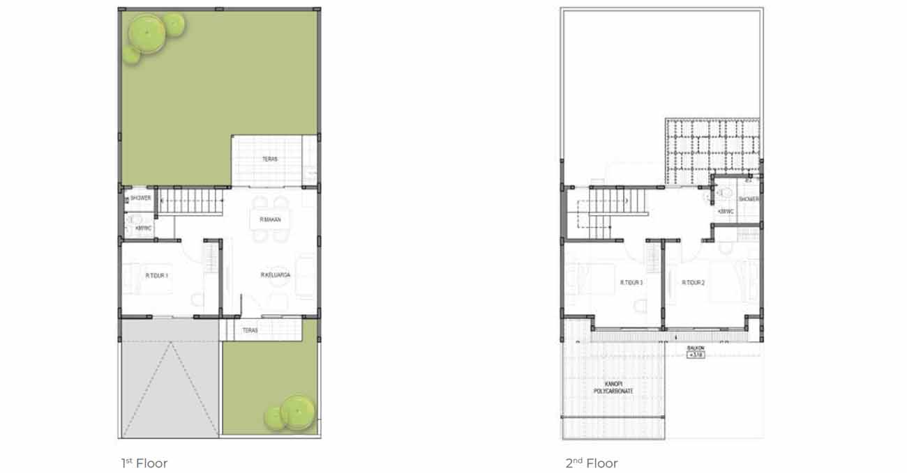
FLOOR PLAN
Tarukejora House | Standard LB | LT : 97 | 136 m²

smarthome1

Spesifikasi Rumah
Tarukejora House | Standard LB | LT : 97 | 120 - 136 m2

smarthome2

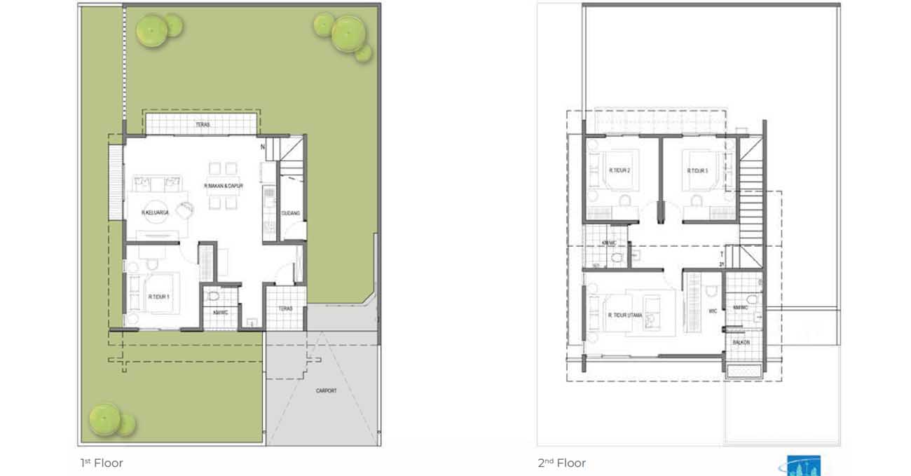
FLOOR PLAN
Tarukejora House | Standard LB | LT : 133 | 209 m²

smarthome1

Spesifikasi Rumah
Tarukejora House | Standard LB | LT : 133 | 209 m²

smarthome2

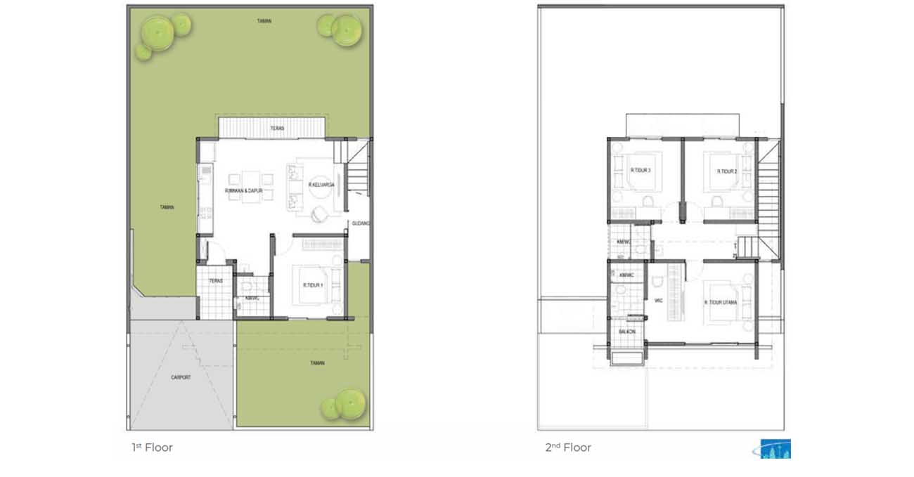
FLOOR PLAN
Tarukejora House | Corner LB | LT : 101 | 165 - 187 m²

smarthome1

Spesifikasi Rumah
Tarukejora House | Corner LB | LT : 101 | 165 - 187 m²

smarthome2

FLOOR PLAN
Tarukejora House | Corner LB | LT : 147 | 243 - 247 m²

smarthome1

Spesifikasi Rumah
Tarukejora House | Corner LB | LT : 147 | 243 - 247 m²

smarthome2

Town Facilities
• Al-Irsyad Satya Islamic School • Bandung Alliance Intercultural School • BPK Penabur School • Bina Persada School • Cahaya Bangsa Classical School • Damian School • Universitas St. Borromeus • Sundial Science Center • Akademi Bahasa Asing Internasional • Bale Seni Barli • Mason Pine Hotel • Bale Pare • Bumi Pancasona Sports Club • Cahya Kawaluyan Hospital • RSIA Parahyangan • Masjid Al-Irsyad Satya • Jonas Photo • Bicycle Lane • Shuttle Bus • Trans Metro Pasundan • Shell • Pertamina • IKEA Store • Parahyangan Golf • Banking Center • Automotive Center • Home & Living Center • Town Management

New Facilities
• Bumi Hejo (Urban Park, Kopi Nako, Casa by Lesavoye) • Wahoo Waterworld • KBP Food Market at Bale Pare • Mc Donald’s • Baby Dutch Pancake • Ambrogio Patisserie • Starbucks

Free Shuttle Car from St. KCIC Padalarang to KBP
New Access Fly Over Simpang Padalarang
Upcoming Facilities
• Bank BJB • Karnivor • Noah Barn’s Coffeenery • Suki Time Grill Time • Yogya • Zen Reflexiology


Hubungi Kami Download Brochure Kami

Related Post

Request A Quote

Butuh Penawaran Menarik? Jangan Ragu untuk Menghubungi Kami

Reply within 24 hours
24 hrs telephone support

Kota Baru Parahyangan adalah sebuah kawasan hunian yang terletak di daerah Parahyangan, Jawa Barat, Indonesia. Dikenal sebagai salah satu kota baru yang berkembang pesat di sekitar Bandung, Kota Baru Parahyangan menawarkan beragam fasilitas dan infrastruktur modern untuk memenuhi kebutuhan penduduknya.

Get In Touch

Kota Baru Parahyangan, Padalarang, Bandung Barat

Erickevin013@gmail.com

+62 813 9448 7792

© Kota Baru Parahyangan Sales. All Rights Reserved. Designed by Presensikita Software Development